Huoltorakennus
![]() |
Ylä-Savon Moottorikerho ry
Moottoriurheilukeskuksen huoltorakennushanke
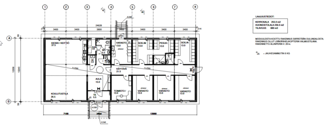
Ylä-Savon Moottorikerho rakentaa Iisalmen Moottoriurheilukeskukseen toimintatila/huoltorakennuksen. Rakennukseen tulee pukuhuoneet, WC ja peseytymistilat, kokokoontumistila, kioski sekä toimisto- ja varastotilaa. Tavoitteena on parantaa moottoriurheilukeskuksen käytettävyyttä kilpailujen ja muiden tapahtumien järjestämiseen sekä tarjota alueen moottoriurheiluharrastajille asianmukaiset harjoitteluolosuhteet oheistiloineen. Odotamme että kunnolliset sosiaalitilat lisäävät moottoriurheilukeskuksen houkuttelevuutta harrastajien keskuudessa ja parantavan ratojen ympärivuotista käyttöastetta.
Hanke totetetaan vuosien 2025-2026 aikana.
Mukana hankkeen toteutuksessa
Ylä-Savon Veturi ry
Pohjois-Savon ELY-keskus
Iisalmen Kaupunki
Iisalmen Vesi -liikelaitos
Insinööritoimisto Hanico Oy
Tervetuloa mukaan tekemään ja tukemaan toimintaa, ota yhteyttä ylasavonmoottorikerho(ät)gmail.com
Esimerkiksi mainostilaa tarjolla uusilla seinillä
Ilmoittaudu avuksi rakennustalkoisiin
| ARK 265-2 ASEMAPIIRROS.pdf (130 kB) | |
| ARK 265-2 POHJAPIIRUSTUS.pdf (218 kB) | |
| ARK 265-3 LEIKKAUKSET.pdf (43 kB) | |
| ARK 265-4 JULKISIVUT.pdf (33 kB) | |
| Kuntoselvitys Toimistorakennus.pdf (1.8 MB) |






